VOGNSKJUL VINGROM
Vi ble kontaktet av en gårdeier som trengte et nytt vognskjul. På tomten står det i dag et falleferdig hønsehus som kunden ønsker revet for å plassere den nye bygningen. I stedet for å se på tomten som et tabula rasa, ble hønsehusets plassering og dimensjoner utgangspunktet for nybygget.
Forslaget vårt er et enkelt og funksjonelt bygg for lagring av traktor, verktøy og større redskaper. Prosjektet har fått den rektangulære formen til hønsehuset. Vi legger vekt på tradisjonelle elementer som rød kledning og saltak, for å gjøre det så lite invaderende som mulig.
Prosjektet er enkelt i sin form, men bearbeidelse av fasaden og detaljene gir den tilsynelatende simplistiske gårdsbygningen stor verdi. Vi har jobbet med lysspillet gjennom de forskjellige lysåpningene i fasaden, plassering og utforming av dører og arbeidsrom. Et holistisk og gjennomarbeidet forslag vi gleder oss til å se ferdigstilt.
Bilder fra topp til bunn:
1Foto av fasaden til hønsehuset.
2Foto av baksiden til hønsehuset.
3Illustrasjon av luft og lys luker.
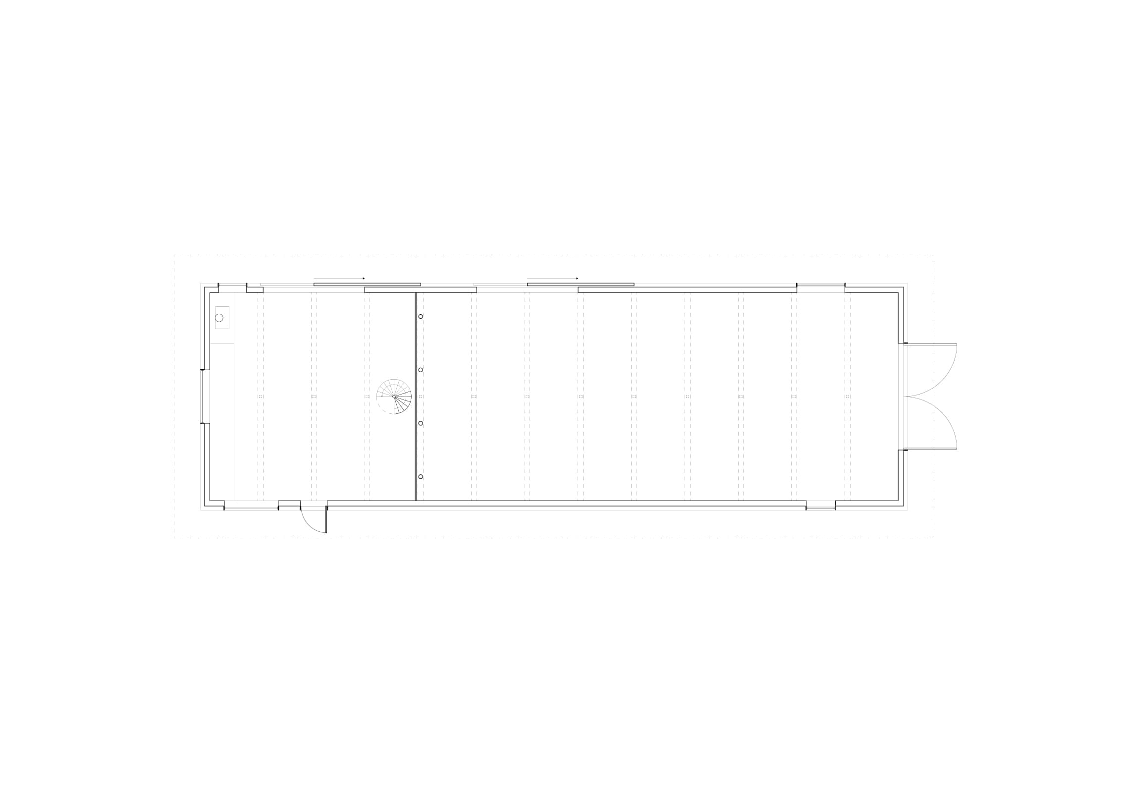
4Plan.
5Sørfasade.
6Østfasade.





